Gale Propiedades & Escribanía
  • Casa ideal para clinica privada, zona comercial, Punta del Este

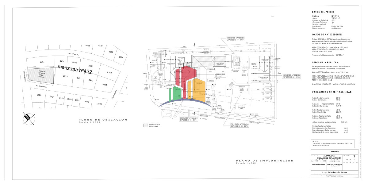
Casa

Jardines de Córdoba, Punta del Este

Venta USD 1.200.000

Alquiler USD 7.500

  • 7

    Dorms

  • 6

    Baños

  • Sup.

    1981 m2

En VentaEn Alquiler

ID de la propiedad : 4738

Casa idea para inversión en Punta del Este.

Sobre avenida Cordoba , en zona de colegios . Con salida a 2 calles. Portones motorizdos

Actualmente diagramada como clinica.
Con un amplio estar recibidor.
5 consiultorios con 6 baños + 2 dormitorios.
Cocina definida.
CCTV y Alarma. Reforma realizada en 2022.
Aire acondicionado en todos los ambientes.

Piscina climatizada con hidromasaje. Barbacoa.
Predio cerrado.
Casa de huespedes con 2 dormitorios .

Consulte a nuestros asesores y coordine su visita


Las imágenes y los metrajes establecidos en las publicaciones son ilustrativos y pueden no coincidir con la realidad. La empresa no se hace responsable por diferencias en metrajes ni estado actual de los bienes muebles e inmuebles.

Características

  • Barrio  Jardines de Córdoba
  • Vista  Agradable Entorno
  • Frente al Mar  No
  • Distancia al Mar  0
  • Terreno m2  1981
  • Edificado m2  470
  • Dormitorios  7
  • Baños  6
  • Suites  0
  • Cocina  Completa
  • Living  Si
  • Comedor  Si
  • Living Comedor  Si
  • Comedor Diario  Si
  • Capacidad Personas  0
  • Cantidad Camas  0
  • Estufa Leña  Si
  • Cantidad de Plantas  0
  • Piscina  Climatizada
  • Parrillero  Barbacoa

Solicita mas información